Сплошная система разработки лава-этаж и лава-ярус: технологии охраны выработок
Общая характеристика системы лава-этаж. Сплошная система разработки лава-этаж характеризуется наличием одного сплошного прямолинейного забоя, называемого лавой, которая в пределах этажа располагается по линии падения пласта или под небольшим углом к ней (рис. 48, а). Подготовка участка начинается с проведения этажных откаточного и вентиляционного штреков от капитального бремсберга или уклона. На расстоянии примерно 40 метров от него эти штреки соединяются между собой разрезной печью, формируя замкнутый контур для начала ведения очистных работ. Данная система широко применяется на тонких и средней мощности пластах с легкообрушаемой кровлей и при отсутствии значительных геологических нарушений. Ее ключевыми преимуществами являются минимальный объем опережающих подготовительных выработок и относительная простота организации проветривания.

Рис. 48. Сплошная система разработки лава-этаж
Охрана штреков на тонких пластах. На пластах мощностью менее 0,9–1,0 метра при достаточно устойчивых боковых породах транспортный штрек обычно проводят узким забоем в виде одной выработки. Для ограждения его от разрушительного влияния горного давления и предотвращения утечек воздуха применяют комплекс мер. Над штреком для усиления крепи выкладывают стенку из старых стоек, уложенных одна на другую, а также возводят бутовую полосу шириной не менее 6 метров. Породу для формирования этой полсы получают при проведении специальной выработки – бутового штрека. Возведение бутовой полосы осуществляется вслед за подвиганием очистного забоя, что обеспечивает постоянную защиту выработки.
Технологические усовершенствования и организация транспорта. Для минимизации трудоемких работ по систематическому переоборудованию погрузочных пунктов над штреком иногда сооружают берму. На этой берме размещают скребковый конвейер и оборудуют полустационарный погрузочный пункт. По мере подвигания очистного забоя конвейер периодически укорачивают с последующим его повторным монтажом. Альтернативным решением является систематическое подтягивание конвейера лебедкой без его полной разборки, что позволяет поддерживать непрерывность транспортировки угля. Такая организация способствует повышению производительности труда и снижению эксплуатационных затрат.
Охрана штреков на мощных пластах и ее недостатки. Если мощность пласта превышает 0,9–1,0 метра, штреки также проводят узким забоем, но с параллельной выработкой – просеком (рис. 49). Штрек и просек соединяют между собой поперечными сбойками. Просек и сбойка выполняют несколько функций: служат запасными выходами из лавы, обеспечивают проветривание забоя штрека в период его проведения и используются для размещения конвейеров. Над штреком в этом случае оставляют целики угля, которые предохраняют крепь от разрушения под воздействием горного давления. Размеры этих целиков устанавливаются эмпирически, в зависимости от глубины работ, величины давления и устойчивости пород.

Рис. 49. Сплошная система разработки при охране штрека целиками: 1 - комбайн; 2 - конвейер; 3 - механизированная крепь; 4 - призабойные и посадочные стойки; 5, 6 - конвейер в просеке и сбойке
Недостатки применения целиков угля. Ограждение штреков с помощью целиков угля связано с рядом существенных недостатков. Основным из них являются значительные потери угля, поскольку целики впоследствии извлекаются лишь частично. Кроме того, такая схема ведет к увеличению объема подготовительных работ за счет необходимости проведения дополнительных просеков и сбоек. Технологическая схема транспортировки угля из лавы также усложняется, так как требует установки двух дополнительных конвейеров: одного в просеке, а другого в сбойке. Это увеличивает капитальные затраты и трудоемкость обслуживания транспортной системы.
Опережение штрека и работа в сложных условиях. Откаточный штрек обычно опережает лаву на 150–200 метров. Такое значительное опережение необходимо для обеспечения удобства маневровых операций электровозов с составами у погрузочного пункта лавы. Оно также позволяет вести работы в лаве и в забое откаточного штрека взаимонезависимо, что повышает общую безопасность и эффективность. При разработке пластов на больших глубинах или когда пласт подвержен суфлярным выделениям метана и внезапным выбросам, забой штрека по углю часто совмещают с лавой (рис. 48, б). Для обеспечения погрузки угля в таких условиях выше основного штрека на 10–12 метров проводят второй откаточный штрек, соединяя их сбойками.
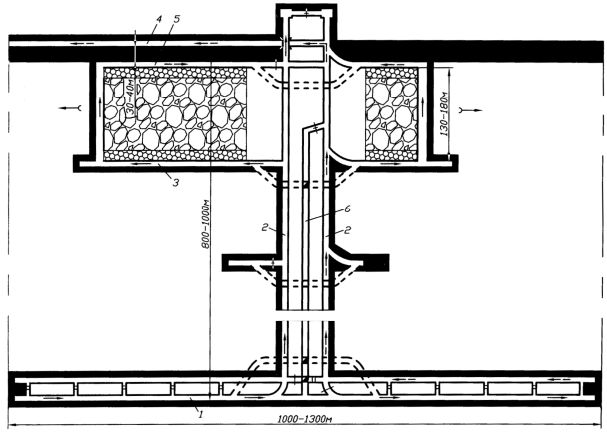
Система разработки лава-ярус. Развитие сети подготовительных выработок при сплошной системе разработки с панельной схемой подготовки (рис. 50) происходит по иному принципу. От главных откаточного и вентиляционного штреков посередине панелей проводят панельные бремсберги (уклоны) с ходками. До начала ведения очистных работ в первом ярусе от них в обе стороны проводят конвейерный и вентиляционный ярусные штреки. На расстоянии 30–50 метров между этими штреками проходят разрезные печи, в которых монтируется оборудование для очистной выемки. Длина лавы при такой системе зависит от горно-геологических условий и применяемых средств механизации, составляя в среднем 130–180 метров.

Рис. 50. Сплошная система разработки лава-ярус: 1 - главный откаточный штрек; 2 - ходки; 3 - ярусный конвейерный штрек; 4 - главный вентиляционный штрек; 5 - ярусный вентиляционный штрек; 6 - панельный бремсберг
Особенности системы на крутых пластах. При сплошной системе разработки лава-этаж крутых пластов с потолкоуступным забоем (рис. 51) подготовка участка начинается с проведения этажных штреков в обе стороны от этажного квершлага. Короткая печь засекается в 10 метрах от квершлага, а от нее параллельно штреку проводят просек, постепенно сбиваемый со штреком печами. Очистная выемка ведется отбойными молотками от печей, соединяющих штреки. Высота уступов варьируется от 8 до 20 метров в зависимости от крепости угля. Опережение забоя откаточного штрека относительно магазинного уступа принимают равным 50 метрам. Охранные целики угля могут оставаться как над откаточным, так и под вентиляционным штреком.

Рис. 51. Сплошная система разработки на тонких крутых пластах лава-этаж с потолкоуступочной формой забоя: 1 - этажный квершлаг; 2 - этажный откаточный штрек; 3 - печь; 4 - просек; 5 - вентиляционная печь; 6 - этажный вентиляционный штрек
Современные подходы к разработке крутых пластов. В настоящее время на крутых пластах все шире применяется система с потолкоуступным забоем без оставления целиков над откаточным штреком. На пластах, опасных по внезапным выбросам, иногда используют систему с почвоуступным забоем, при которой очистной забой разбивают на несколько уступов, что исключает образование опасных верхних кутков. Для выемки угля на крутых пластах активно внедряются комбайны и струги в сочетании с механизированными крепями, что делает ненужной трудоемкую потолкоуступную форму забоя и переводит процесс на более высокий технологический уровень.
Система с прямолинейным забоем. При сплошной системе разработки лава-этаж с прямолинейной формой забоя на крутых пластах (рис. 52) длина лавы составляет 80–130 метров. Лава наклонена к линии простирания под углом 5–10°, что обеспечивает надежный контакт комбайна с угольным забоем. В нижней части лавы могут предусматриваться два-три магазинных уступа для выемки угля отбойными молотками, хотя возможны и схемы без них. Небольшая ниша в верхней части лавы служит для переоборудования комбайна, а выемка угля производится снизу вверх. Область применения данной системы – тонкие и средней мощности высокогазоносные пласты, склонные к внезапным выбросам.

Рис. 52. Сплошная система разработки крутого пласта с прямолинейным забоем
Способы охраны откаточных штреков на крутых пластах. Этажный откаточный штрек на крутых пластах чаще проводят по пласту и реже – по пустым породам, то есть как полевой. При проведении штреков по пласту их охрану осуществляют целиками угля (рис. 53, а), кострами (рис. 53, б) и кустами (рис. 53, в). Охрана целиками угля обеспечивает надежное сопряжение лавы со штреком; размер целиков по падению составляет 8–12 метров, по простиранию – 5–6 метров. Количество свободных углеспускных печей для выхода из лавы должно быть не менее двух, а минимальное опережение просека относительно очистного забоя – не менее 20 метров.

Рис. 53. Технологические схемы расположения и охраны откаточных штреков при сплошной системе разработки крутых пластов: а, б, в - по пласту с охраной соответственно целиками угля, кострами, кустами; г - по пустым породам; 1 - пластовый откаточный штрек; 2 - просек; 3 - углеспускная печь; 4 - полевой откаточный штрек; 5 - гезенки (скаты)
Недостатки и альтернативы охраны целиками. Недостатки охраны штреков целиками угля включают необходимость проведения дополнительных выработок (печей, просеков) и значительные потери угля, особенно ощутимые при ограниченной высоте этажа. Также возникают неудобства при доставке крепежных материалов и оборудования в лаву. Область применения этого способа ограничивается пластами с несамовозгорающимися углями и почвами, склонными к сползанию. В качестве альтернативы на пластах, склонных к самовозгоранию и опасных по выбросам, применяют охрану кострами и кустами, что уменьшает объем нарезных работ и исключает потери угля.
Применение полевых штреков. Проведение штреков по пустым породам (полевых штреков) (рис. 53, г) применяется на пластах, склонных к самовозгоранию, опасных по выбросам, а также со слабыми боковыми породами. Полевые штреки располагают в почве пласта на расстоянии 5–20 метров от него. Соединение штрека с лавой осуществляется через гезенки (скаты), которые проводят либо буровзрывным способом, либо с помощью буросбоечных машин. При машинном способе диаметр гезенков достигает 1 метра, а расстояние между ними принимается в пределах 5–8 метров для оптимизации затрат и трудоемкости работ.

Рис. 54. Технологические схемы расположения и охраны вентиляционных штреков при сплошной системе разработки крутых пластов: а, б - по завалу; в - по пласту; г, д - по пустым породам соответственно с проведением нового штрека и повторным использованием бывшего транспортного; 1 - вентиляционный штрек, проводимый по завалу; 2 - вентиляционная печь; 3 - бывший откаточный штрек; 4 - вентиляционный штрек, проводимый по пласту (минусовый штрек); 5 - полевой вентиляционный штрек, проводимый заново; 6 - вентиляционный гезенк (сбойка); 7 - полевой вентиляционный штрек, повторно используемый (бывший откаточный)
Организация вентиляционных штреков. Вентиляционные штреки в большинстве случаев проводят по завалу и охраняют целиками угля (рис. 54, а) или бутовыми полосами (рис. 54, б). Проведение штреков по завалу на месте бывших откаточных – трудоемкий процесс, осуществляемый отбойными молотками из-за наличия в старых выработках остатков крепи и крупных глыб пород. Эта мера часто вызвана необходимостью сохранить одинаковый уровень рельсовых путей на всем вентиляционном горизонте. Охрана небольшими целиками угля применяется для обеспечения безопасного и надежного сопряжения лавы со штреком, особенно когда породы кровли нарушены ведением вышележащих работ.
Минусовые и полевые вентиляционные штреки. Проведение вентиляционного штрека по пласту (так называемый минусовый штрек) показано на рис. 54, в. Его располагают ниже уровня вентиляционного горизонта, оставляя целик угля, и проводят вслед за лавой. Достоинствами минусовых штреков являются упрощение технологии проходки и отсутствие труднопроветриваемых тупиковых забоев. Однако их применение усложняет работу транспорта из-за появления наклонных соединительных выработок. Полевые вентиляционные штреки могут проводиться заново (рис. 54, г) или использоваться повторно (рис. 54, д). Соединение с лавой в первом случае осуществляется через гезенки, а во втором – через восстановленные углеспускные гезенки или новые вентиляционные сбойки.
Сведения об авторах и источниках:
Авторы: Жежелевский Ю. А., Федерова М. А.
Источник: Система разработки угольных месторождений.
Данные публикации будут полезны студентам вузов, обучающимся по специальности «Подземная разработка месторождений полезных ископаемых», начинающим специалистам горной промышленности, а также всем, кто интересуется технологиями подземной добычи угля.
Дата добавления: 2025-11-19; просмотров: 22;











