Системы разработки длинными столбами по падению и восстанию: особенности и область применения
Общая характеристика систем по падению и восстанию. Системы разработки длинными столбами по падению и восстанию характеризуются специфической подготовкой выемочных столбов. Она осуществляется путем проведения бремсбергов (уклонов) и ходков на полную высоту выемочного горизонта. Образованные таким способом столбы отрабатываются лавами, которые подвигаются по направлению падения или восстания пласта. Для проветривания очистных забоев обычно применяется прямоточная схема, которая может быть как без подсвежения воздушной струи, так и с подсвежением.
Система разработки по восстанию одинарными лавами. Вариант системы разработки длинными столбами по восстанию одинарными лавами с обрушением используется при отработке пологих пластов с углом падения до 10° и мощностью 0,7–2,0 метра. Кровля пласта должна быть устойчивой или средней устойчивости, при этом допускается любая газоносность месторождения. Глубина ведения работ по данной технологии может достигать 1200 метров, что подробно иллюстрирует рис. 36. Подготовка горизонта осуществляется по погоризонтной схеме.

Рис. 36. Система разработки длинными столбами по восстанию одинарными лавами при погоризонтной схеме подготовки и отработке уклонного поля: 1 - главный полевой транспортный штрек; 2 - вентиляционный ходок; 3 - конвейерный уклон; 4 - главный воздухоподающий штрек; 5 - просек
Система разработки по падению одинарными лавами. При системе разработки длинными столбами по падению одинарными лавами с обрушением подготовка первого столба включает проведение бремсберга и ходка, как показано на рис. 37. Каждый последующий столб подготавливается путем проходки только одного бремсберга. Очистные работы стартуют от главного вентиляционного штрека, а забой последовательно перемещается по падению пласта. Смежный вспомогательный ходок по мере подвигания забоя подвергается погашению.

Рис. 37. Система разработки длинными столбами по падению одинарными лавами при погоризонтной схеме подготовки и отработке бремсбергового поля: 1 - главный полевой вентиляционный штрек; 2 - главный полевой транспортный штрек; 3 - воздухоподающий штрек; 4 - вспомогательный ходок; 5 - конвейерный бремсберг
Область применения этого варианта охватывает пологические пласты мощностью до 3,5–4,5 метров с углом падения до 10° и любой газоносностью. Породы кровли могут варьироваться от неустойчивых до устойчивых, а глубина разработки достигает 900 метров. Конвейерный бремсберг сохраняется после отработки столба и используется для следующих операций.
Система с спаренными лавами и ее эффективность. Подготовка выемочных столбов при системах с спаренными лавами включает проведение трех наклонных выработок, что наглядно демонстрирует рис. 38. Использование таких систем позволяет достичь высокой концентрации горных работ в пределах одного пласта. К основным достоинствам этих систем относятся значительный размер выемочного горизонта, что снижает удельные затраты на проведение штреков, и постоянная длина лавы.

Рис. 38. Система разработки длинными столбами по восстанию спаренными лавами: а - без подсвежения; б - с подсвежением; 1 - главный откаточный штрек; 2 - главный вентиляционный штрек; 3 - кроссинг; 4 - бортовой конвейерный уклон; 5 - ходок; 6 - воздухоподающий штрек
К другим преимуществам относятся большие размеры выемочных столбов и возможность одновременной подготовки нескольких столбов. Это позволяет проводить предварительную дегазацию массива, особенно при отработке через один или два столба. Однако системы имеют и недостатки, такие как ограниченная область применения из-за углов падения свыше 10–12° и сложности логистики.
Щитовая система разработки на крутых пластах. Щитовая система разработки крутых пластов длинными столбами по падению предполагает деление шахтного поля на этажи и выемочные поля. Длина односторонних полей составляет 250–300 метров, а двусторонних – 400–600 метров по простиранию. Подготовка начинается с проведения откаточных и вентиляционных штреков, а отработка ведется от границ к промежуточному квершлагу. Каждое поле разделяется на щитовые столбы шириной 24–50 метров.
Технология нарезки и проветривания при щитовой системе. Печи при щитовой системе проходят с использованием буросбоечных машин, сначала в виде скважин, с последующим расширением. Для удобства выгрузки углеспускные печи располагают примерно в 1,5 метра от лежачего бока. Каждый щитовой столб обслуживается двумя ходовыми печами. Процесс нарезки также включает проходку монтажной камеры для установки щита. Для проветривания забоя у висячего бока проводится специальная вентиляционная печь длиной 15–20 метров, как показано на рис. 39.

Рис. 39. Система разработки крутых пластов длинными столбами по падению с щитовым перекрытием: 1 - вентиляционные штреки; 2 - выемочный столб; 3 - вентиляционная печь специальная; 4 - вентиляционная печь; 5 - углеспускная печь; 6 - откаточный штрек
Достоинства, недостатки и область применения щитовой системы. К неоспоримым достоинствам щитовой системы относятся высокая производительность труда, низкая себестоимость добычи угля и минимальный расход лесоматериалов, поскольку отсутствуют работы по креплению. Уголь перемещается самотеком, что упрощает логистику. Однако система имеет серьезные недостатки: эксплуатационные потери угля могут достигать 40%, высок удельный вес подготовительных работ и расход металла, а также присутствует высокая пожароопасность. Область применения – крутые пласты с углом падения от 40° и мощностью 1,2–10 метров.
Система со сдвоенными щитами для мощных пластов. Для отработки мощных крутых пластов применяется система разработки со сдвоенным щитовым перекрытием. Ее основное отличие – расположение щитов по мощности пласта в два ряда, как представлено на рис. 40. Пласт в этом случае разрабатывается одновременно двумя щитами. Подготовка выемочного поля аналогична системе с одинарными щитами, но включает двойную линию подготовительных выработок. Откаточный и вентиляционный штреки соединяются тремя печами: углеспускной, ходовой и вентиляционной.

Рис. 40. Элементы системы разработки крутых пластов длинными столбами по падению со сдвоенным щитовым перекрытием
Опыт применения в Прокопьевско-Киселевском районе. Ведущую роль в добыче угля из мощных крутых пластов играет Прокопьевско-Киселевский район Кузбасса. На его долю приходится около 90% всех шахт, разрабатывающих подобные пласты, а запасы угля в пластах мощностью более 6 метров составляют 42%. Технология, применяемая в этом районе, является эталонной для всей страны. Эффективность разработки здесь зависит от таких природных факторов, как высокая газоносность, сложная тектоника и склонность углей к самовозгоранию.
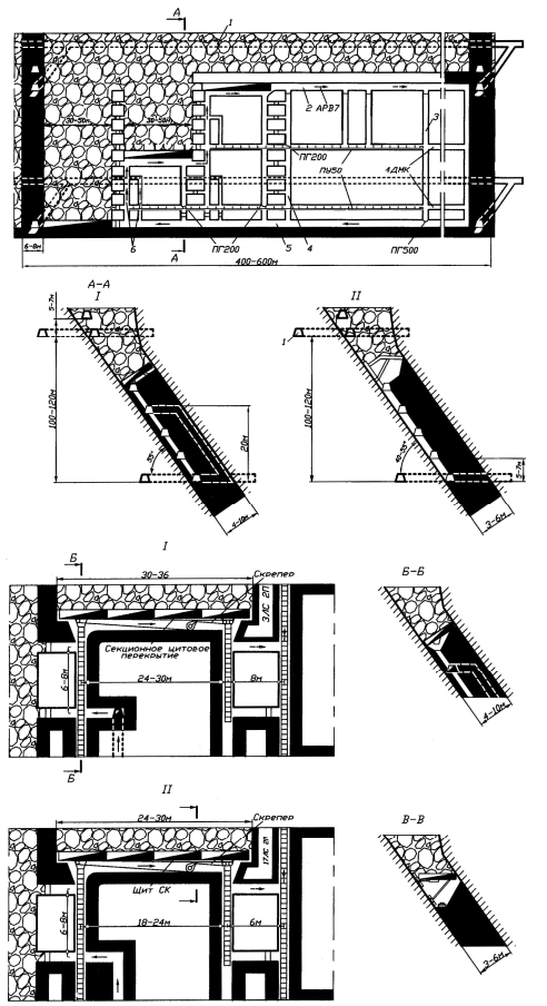
Совершенствование технологии щитовой системы. На шахтах Кузбасса была внедрена усовершенствованная технологическая схема для пластов мощностью 3–10 метров. Она предполагает использование двух углеспускных печей вместо четырех, как показано на рис. 41. Выемка угля под щитовым перекрытием ведется буровзрывным способом. Для разных условий применяются бессекционные и секционные щитовые перекрытия обычного типа или специальные перекрытия типа СК. Доставка угля осуществляется с помощью скреперных установок УСЩ.

Рис. 41. Система разработки столбами по падению (щитовая): 1 - полевой вентиляционный штрек; 2 - вентиляционный штрек; 3 - углеспускная печь; 4 - ходовая печь; 5 - транспортный штрек; 6 - вентиляционные печи
Управление кровлей и сопутствующие риски. Управление кровлей при данных системах разработки производится методом обрушения с перепуском пород. Этот процесс сопровождается опасными физико-механическими явлениями. Наиболее характерными из них являются сдвижения горных пород большими массами, что приводит к повышенным нагрузкам на выработки, завалам лав и поломкам щитов. Дополнительными рисками являются эндогенные пожары, горные удары, внезапные выбросы угля и газа, а также прорывы глин в действующие горные выработки.
Сведения об авторах и источниках:
Авторы: Жежелевский Ю. А., Федерова М. А.
Источник: Система разработки угольных месторождений.
Данные публикации будут полезны студентам вузов, обучающимся по специальности «Подземная разработка месторождений полезных ископаемых», начинающим специалистам горной промышленности, а также всем, кто интересуется технологиями подземной добычи угля.
Дата добавления: 2025-11-19; просмотров: 32;











